Objekt 2891
Modernes Ladenlokal mit großzügiger Fensterfront an der Detmolder Straße 435 in Bielefeld Stieghorst
Kaltmiete
1.600 € KM
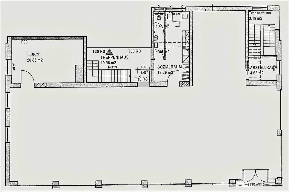
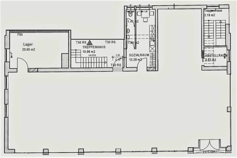
Grundrisse / Pläne
Energieausweis
- Verbrauchsausweis
- Energieverbrauchskennwert: 164,3 kWh/m² a
- Mit Warmwasser: Nein
- Baujahr Anlagentechnik: 1959
- Endenergieverbrauch Strom: 42,3 kWh/m² a
- Endenergieverbrauch Wärme: 164,3 kWh/m² a
- Primärer Energieträger: Gas
- Gültig bis: 23.02.2031
- Verbrauchsausweis
- Energieverbrauchskennwert: 164,3 kWh/m² a
- Mit Warmwasser: Nein
- Baujahr Anlagentechnik: 1959
- Endenergieverbrauch Strom: 42,3 kWh/m² a
- Endenergieverbrauch Wärme: 164,3 kWh/m² a
- Primärer Energieträger: Gas
- Gültig bis: 23.02.2031


















