Reserviert
Zu diesem Objekt könen derzeit keine Anfragen entgegen genommen werden.
Objekt 2753
KEINE KÄUFERPROVISION Maisonettewhg. mit ausbaufähigem Dachboden und Balkon in Bielefeld Brackwede
Kaufpreis
199.900 €
Keine Käuferprovision
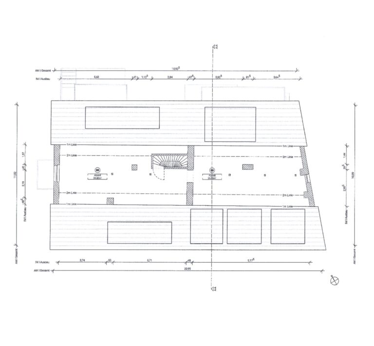
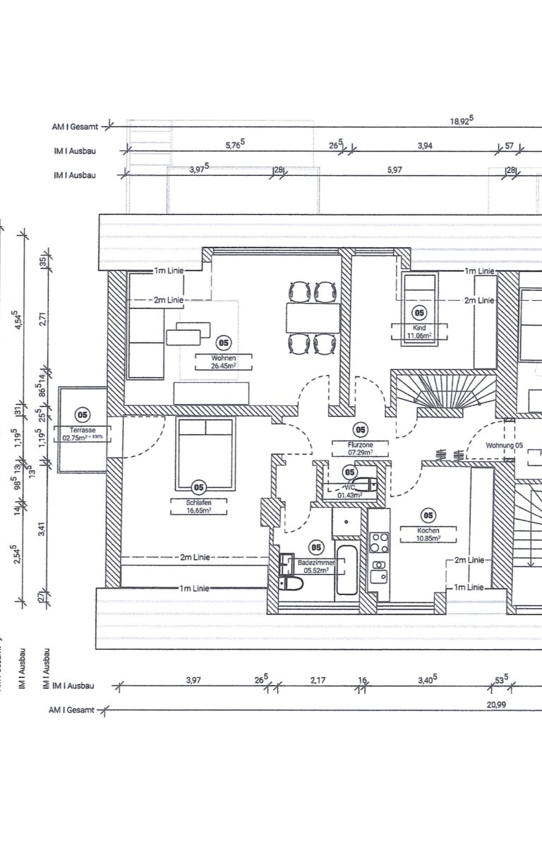
Grundrisse / Pläne
Energieausweis
- Verbrauchsausweis
- Energieverbrauchskennwert: 176,3 kWh/m² a
- Mit Warmwasser: Nein
- Energieeffizienzklasse: F
- Primärer Energieträger: Gas
- Gültig bis: 19.03.2025
- Verbrauchsausweis
- Energieverbrauchskennwert: 176,3 kWh/m² a
- Mit Warmwasser: Nein
- Energieeffizienzklasse: F
- Primärer Energieträger: Gas
- Gültig bis: 19.03.2025














